Geschäftslokal, Showroom oder Büro beim Zentaplatz

Lage: 1050 Wien, Margareten | Wien
IMG_1474
IMG_1471
IMG_1111
IMG_1120
IMG_1115
IMG_1119
IMG_1123
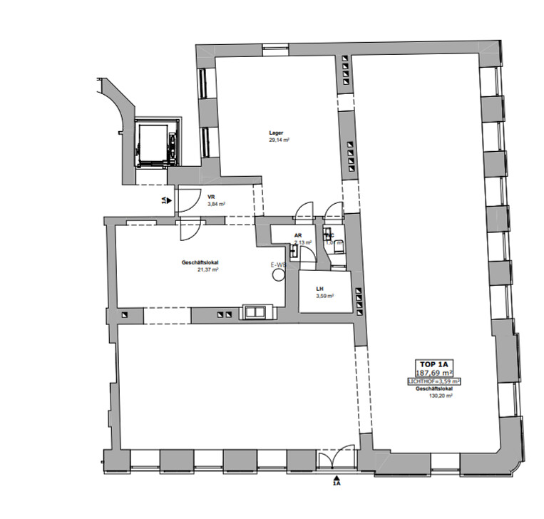
Plan
IMG_1472
IMG_1473
IMG_1470

Beschreibung

Das Lokal besteht im Wesentlichen aus zwei straßenseitigen Räumen mit ca. 50 m² bzw. 80 m².

Des Weiteren verfügt das Lokal neben zwei Nassräumen über einen Sozialraum/Backoffice mit Teeküchenanschlüssen im Ausmaß von ca. 22 m² sowie einen weiteren Hofseitigen und gut belichteten Raum mit knapp 30 m².

- Neue Holzfenster mit Isolierverglasung und öffenbaren Oberlichten
- Hochwertige Türen
- Gepflegte Sanitärbereiche
- Hochwertiger Parkettboden
- EDV-Verkabelung
- Gasbrennwertgerät
- Straßeneingang und weiterer Eingang über Stiegenhaus

Miete:EUR 2.900 Monat (zzgl. USt)
Betriebskosten:EUR 463,26 Monat (zzgl. USt) – exkl. Heizung/Strom


Eine Vermietung an unecht-steuerbefreite Branchen (Ärzte, Versicherungen, etc.) ist möglich.

Der Vorsteuerschaden wird auf die Nettomiete aufgeschlagen.

Lage und Verkehrsanbindung

Das Objekt befindet sich im Herzen des 5. Wiener Gemeindebezirks in einem Top-Sanierten Gründerzeitgebäude.
Gegenüber vom Lokal befindet sich eine EURO-Spar Filiale mit großzügiger, öffentlicher Tiefgarage.

Wiener Lokalbahn:Station Laurenzgasse (ca. 3 Min)
Bus: 12A 14A (ca. 1 Min)
U-Bahn:U2 Verlängerung ab 2028 in unmittelbarer Nachbarschaft
U4 Kettenbrückengasse (ca. 10 Min)
U1 Südtiroler Platz (ca. 10 Min)

Fakten

Objektnummer:
oO-2025-00169
Objekttyp:
Einzelhandel
Nutzfläche
187,9 m²
Gesamtfläche:
187,9 m²
Zustand:
Neuwertig
Verfügbarkeit:
Verfügbar

Preisdetails

Nettomiete:
2.900,00 €
Betriebskosten Netto:
463,26 €
Gesamtmiete:
4.035,91 €
Bruttomiete:
3.480,00 €
BK:
555,91 €

Ansprechpartner

Stefan Egelkraut
Anfrage
Max. 500 Zeichen
Ich habe die Datenschutzvereinbarung gelesen und verstanden, und ich stimme der Verarbeitung meiner persönlichen Daten wie darin beschrieben zu. *