Geschäftsflächen am Kreativ-Hot-Spot Westbahnstrasse - Concept-Store, Health & Co.

Lage: 1070 Wien, Neubau / Neubau | Wien
IMG_1775
IMG_1808
Moderne Pilates-Studio mit Reformer-Geräten(1)
Moderne Boutique im minimalistischen Stil
Moderne Boutique mit Barbereich und Streetwear
IMG_2145
IMG_2143
IMG_2149
IMG_2144
IMG_2146
IMG_2148
IMG_1780
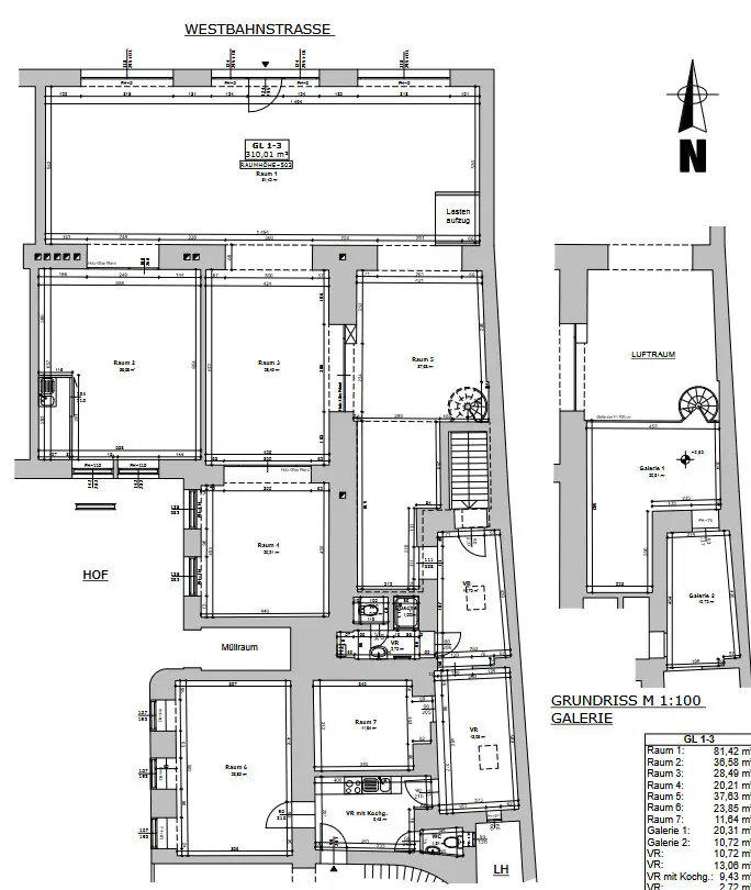
Plan_GL_Gross

Beschreibung

Die beiden Lokale verfügen über enorme Raumhöhen und große Portalfenster. Die Flächen werden
in Abstimmung mit dem künftigen Nutzer adaptiert und bieten somit höchstmöglichen
Gestaltungsspielraum.

Sanierungsüberlegungen (je nach Konzept und Laufzeit)
✓ Elektroinstallationen neu
✓ Heizung und Kühlung neu
✓ Tw. Abbruch Galerieebenen
✓ Entfernungen abgehängte Decken
✓ Belagsfertiger Bodenaufbau
✓ Weitere Wanddurchbrüche

FLÄCHEN UND KONDITIONEN
GL 1-3
Flächen: ca. 300 m² (zusätzlich bei Bedarf 160 m² Kellerfläche)
Miete: EUR 6.000 Monat (zzgl. USt)
Betriebskosten: EUR 748,85 BK (zzgl. USt) – exkl. Heizung/Strom


GL 4-5
Flächen: ca. 154 m² (davon ca. 31 m² Galeriefläche)
Miete: EUR 2.500 Monat (zzgl. USt)
Betriebskosten: EUR 361,08 BK (zzgl. USt) – exkl. Heizung/Strom


HWB: in Erstellung

Langfristig befristeter Hauptmietvertrag. Kündigungsverzicht Mieter in Abhängigkeit von
Sanierungsarbeiten (min. 5 Jahre).

Kaution: bonitätsabhängig 3-6 BMM (Miete+BK+Ust).

Lage und Verkehrsanbindung

Die beiden Objekte befinden sich in hervorragender Lage des 7. Wiener Gemeindebezirks unweit
der Neubaugasse in einem wunderschönen Gründerzeitgebäude.

Das Umfeld ist geprägt von angesagten Gastrolokalen und Concept-Stores.

Bus: 13 A
Straßenbahn: 49

Fakten

Objektnummer:
oO-2026-00185
Objekttyp:
Einzelhandel
Nutzfläche
300 m²
Verfügbarkeit:
Verfügbar

Preisdetails

Nettomiete:
6.000,00 €
Betriebskosten Netto:
748,85 €
Gesamtmiete:
8.098,62 €
Bruttomiete:
7.200,00 €
BK:
898,62 €

Ansprechpartner

Stefan Egelkraut
Anfrage
Max. 500 Zeichen
Ich habe die Datenschutzvereinbarung gelesen und verstanden, und ich stimme der Verarbeitung meiner persönlichen Daten wie darin beschrieben zu. *